
Прелеп таунхаус са панорамним погледом који се пружа на Петроварадинску тврђаву, град Нови Сад, три моста и са друге стране на Фрушкогорски масив.
Савремени дизајн таунхауса (куће у низу) са одвојеним улазом и местом за паркинг и одмор и собственим базеном, омогућују јединствено место за породични одмор и живот. Уведене су инжњерске мреже: струја, вк..
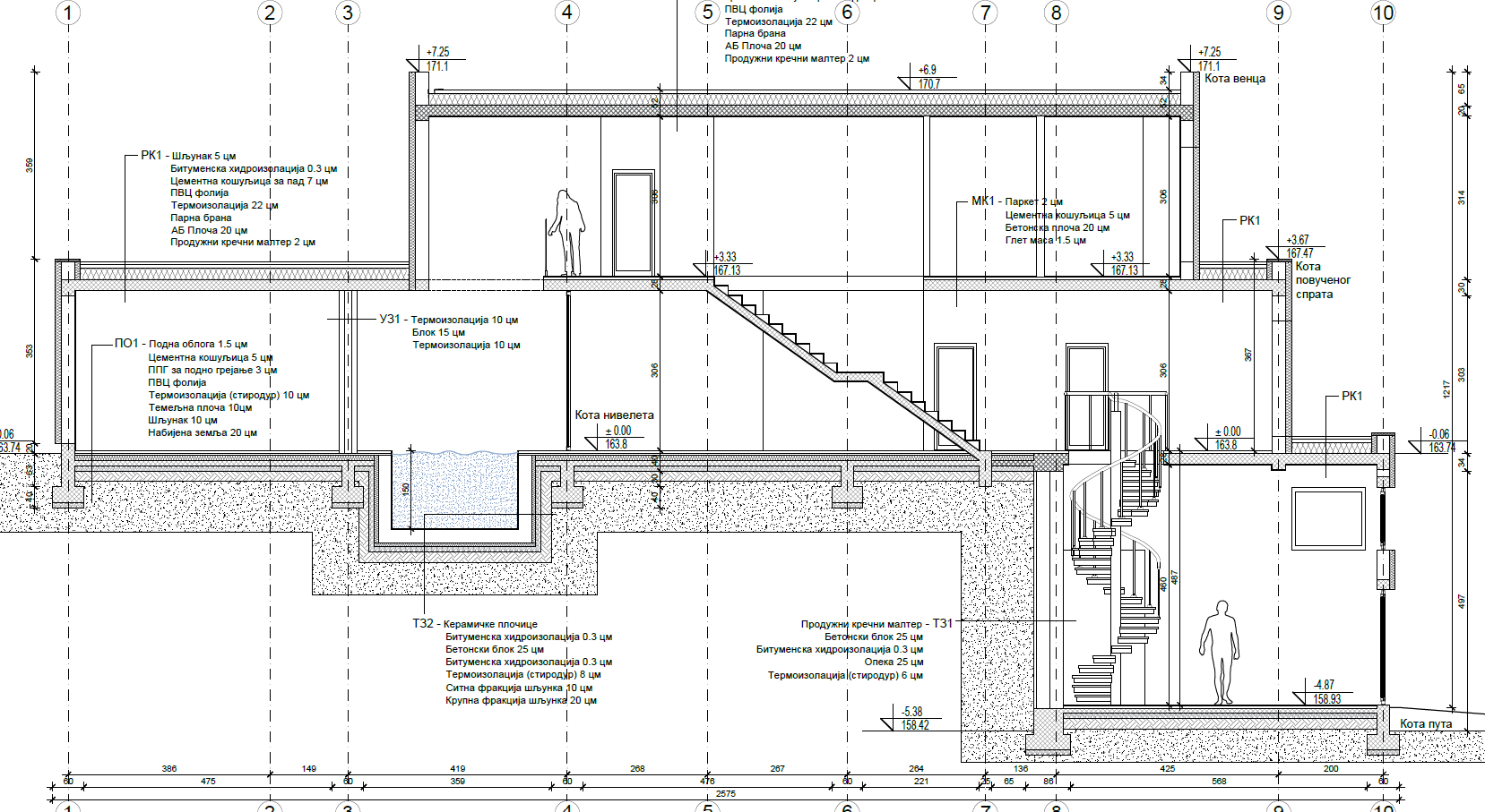
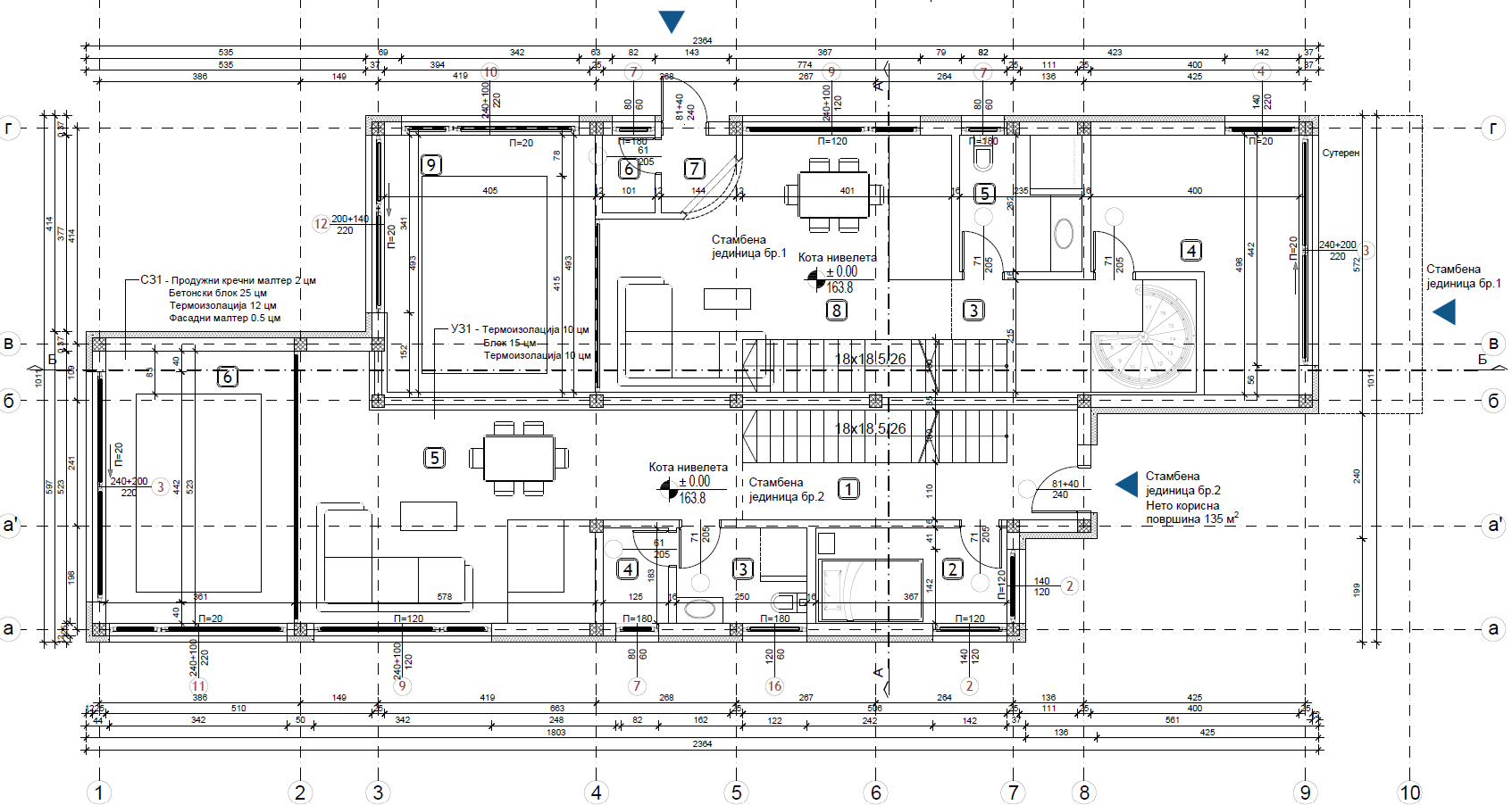
Структура зграде има концепт таунхауса са четири стамбене јединице (таунхауса) које су раздвојене по вертикалама (стамбене јединице: 1.1. и 1.2), док су стамбене јединице: 2.1 и 2.2 раздвојене по спратовима и имају одвојене улазе.
Завршни радови се предају са системом «кључ у руке». Квадратуре су израчунате на основу пројектне документације изведених радова са редукованим површинама узимајући у обзир радове малтерисања и сл.
Структура стамбених јединица:
Стамбена јединица бр. 1.1, сутерен, приземље, 83 м2, 1700e/m2
м2 опис
30 сутерен 1 трпезарија, дневна и купатило
30 сутерен 2 дечија соба
20 спаваћа соба
5.75 тераса (реална површина: 11.5 м2, коеф 50%)
Укупно: 83 м2
Стамбена јединица бр. 1.2, приземље и спрат, 137 м2, 2300e/m2
м2 опис
41.00 велика соба, трпезарија и купатило
21.00 базен
8.80 степениште
2.90 тераса (реална површина: 5.8 м2, коеф 50%)
21.00 велика соба
5.50 купатило
24.00 две собе и ходник
13.00 кабинет
4.10 тераса (реална површина: 8.2 м2, коеф 50%)
Укупно: 137 м2
Стамбена јединица 2.1, приземље, 75 м2, 2300e/m2
м2 опис
41.00 велика соба, трпезарија, купатило и остава
15.00 две спаваће собе и ходник
19.00 базен
Укупно: 75 м2
Стамбена јединица бр. 2.2, спрат, 77 м2, 2100e/m2
м2 опис
38.00 соба, купатило, ходник, остава
8.20 соба
14.00 соба
4.4 степениште
16.50 тераса (реална површина: 33 м2, коеф 50%)
Укупно: 77 м2
Стамбене јединице 1.1, 1.2 и 2.1 имају одвојене улазе и собствено место за паркинг и роштиљ.
Стамбена јединица 2.2 има одвојен улаз и собствено место за паркинг.
Техничке карактеристике и опрема:
Подно грејање на гас са проточном топлом водом
Термо блокови са добром топлотном и звучном изолацијом








0 коментарa